手動電動可選,可配熔斷器
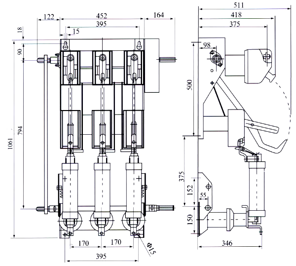
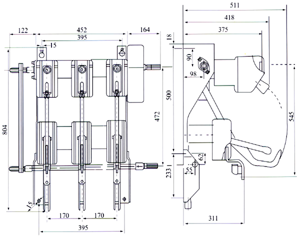
型號FN18-12/630-20
全國24小時銷售熱線:
13616630771
FN18-12系列戶內高壓負荷開關,具有設計先進、操作簡便、結構緊湊、體積小、功能全、重量輕、
分合速度快、可靠性高等優點。適用于交流50Hz,額定電壓12KV、額定電流630A及三相配電系統中,
特別適用于城網建設改造工程,高層建筑,公共設施的環網供電,是箱式變電站、變壓器保護的理想產品。
|
序號 |
項目 |
電位 |
FN18-12D/630 |
FN18-12DR/100-31.5 |
|
1 |
額定電壓 |
KV |
12 |
|
|
2 |
額定頻率 |
Hz |
50 |
|
|
3 |
額定電流 |
A |
630 |
100 |
|
4 |
1min工頻耐受電壓 |
kv |
對地及相間42;隔離斷口48 |
|
|
雷電沖擊耐受電壓 |
對地及相間75;隔離斷口85 |
|||
|
5 |
相間距離 |
mm |
170 |
|
|
6 |
額定動穩定電流 |
KA |
50 |
|
|
7 |
額定熱穩定電流 |
KA/S |
20/2 |
|
|
8 |
額定電纜充電電流 |
A |
10 |
|
|
9 |
額定轉移電流 |
|
1600 |
|
|
10 |
開斷空載變壓器容量 |
KVA |
1250 |
|
|
11 |
額定短路開斷電流(熔斷值) |
KA |
|
31.5-50 |
|
12 |
額定短路關合電流(峰值) |
50 |
||
|
13 |
額定有功負載開斷電流 |
630 |
|
|
|
14 |
接地開關額定熱穩定電流 |
KA/S |
16/2 |
|
|
15 |
額定有功負載電流開斷次數 |
|
100 |
|
|
16 |
機械壽命 |
2000 |
||
最新產品