FN5-12R(L)型戶內交流高壓負荷開關-熔斷器組合電器經全面型式試驗和長期的試運行考核,性能達到IEC420《交流高壓負荷開關-熔斷器組合電器》(1990版)和GB3804《3-63KV交流高壓負荷開關》標準要求,與國外同類產品比較,技術參數已達到同類產品水平,具有體積小,重量輕,可用于環網柜和箱式變電站,廣泛應用于10KV線路電能的分配,可實現開關、隔離和接地三工位,并有效地避免了設備的缺相運行。
型號FN5-12/400A
全國24小時銷售熱線:
13616630771
FN5-12RD/630戶內交流高壓負荷開關(以下簡稱負荷開關適用于交流50Hz、12kV的網絡中,作為開斷負荷電流及關合短路電流之用。帶有熔斷器的負荷開關可切斷短路電流,作保護開關之用。本負荷開關可配用CS6-1型手動操作機構、本產品專用CS□手動操作機構或CJ□電動操動機構。
FN5-12R(L)型戶內交流高壓負荷開關-熔斷器組合電器經全面型式試驗和長期的試運行考核,性能達到IEC420《交流高壓負荷開關-熔斷器組合電器》(1990版)和GB3804《3-63KV交流高壓負荷開關》標準要求,與國外同類產品比較,技術參數已達到同類產品水平,具有體積小,重量輕,可用于環網柜和箱式變電站,廣泛應用于10KV線路電能的分配,可實現開關、隔離和接地三工位,并有效地避免了設備的缺相運行。

1、周圍空氣溫度上限:+40度,下限:-25度;
2、海拔高度不超過1000m;
3、相對濕度日平均值不大于95%,月平均值不大于90%;
4、地震烈度不超過8度;
5、無火災、爆炸危險,化學腐蝕及劇烈振動的場所;
6、污穢等級:Ⅱ級;
7、周圍空氣應不受腐蝕性或可燃性氣體及水蒸汽等明顯污染。
主要產品型號:FN5-12RL/630、FN5-12RL/400(A)
1、負荷開關-熔斷組合電器的技術參數見下表:
| 序號 | 名稱 | 單位 | 參數 |
| 1 | 額定電壓 | KV | 12 |
| 2 | 最高工作電壓 | KV | 12 |
| 3 | 額定頻率 | Hz | 50 |
| 4 | 額定電流 | A | 100 |
| 5 | 額定短路開斷電流 | KA | 50 |
| 6 | 1min 工頻耐受電壓(有效值)對地、相間/隔離斷口 | KA | 42/48 |
| 7 | 雷電沖擊耐受電(壓峰)值對地、相間/隔離斷口 | KV | 75/85 |
| 8 | 熔斷件撞擊輸出能量 | Kg | ≈5 |
| 序號 | 名稱 | 單位 | 參數 |
| 1 | 額定電壓 | KV | 12 |
| 2 | 最高工作電壓 | KV | 12 |
| 3 | 額定頻率 | Hz | 50 |
| 4 | 額定電流 | A | 630 |
| 5 | 額定負載有功負載開斷電流 | A | 630 |
| 6 | 5%額定有功負載開斷電流 | A | 31.5 |
| 7 | 額定電容開斷電流 | A | 10 |
| 8 | 額定電感開斷電流 | A | 40 |
| 9 | 額定轉移電流 | KA | 1.3 |
| 10 | 額定短時耐受電流 | KA | 20 |
| 11 | 額定峰值耐受電流 | KA | 50 |
| 12 | 機械壽命 | 次 | 2000 |
![]() |
1、框架 2、支柱絕緣子 3、支座接線座 4、刀片 5、滅弧管 6、扭簧及扭簧銷軸 7、導向片 8、觸座接線板 9、拉桿 10、負荷開關轉軸 11、彈簧儲能機構 12、操作機構 |
![]() |
1、框架 2、接地刀片 3、接地開關軸 4、支柱絕緣子 5、接地轉軸 6、支座接地板 7、刀片 8、滅弧管 9、拉簧接鈕簧銷軸 10、導向片 11、觸座接線板 12、拉桿 13、負荷開關軸 14、接線開關彈簧儲能機構 15、接地開關彈簧儲能機構 16、負荷開關操作機構 17、接地開關操作機構 |
![]() |
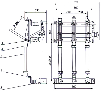
1、FN5-12負荷開關 2、支座熔斷器接線板 3、熔管 4、熔斷器接線板 5、熔斷器支架 注:配RN3熔管電流75A及75A以上的安裝尺寸為括號內尺寸。 |
![]() |
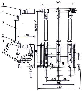
1、FN5-12D負荷開關 2、支座熔斷器接線板 3、熔管 4、熔斷器接線板 5、熔斷器支架 注:配RN3熔管電流75A及75A以上的安裝尺寸為括號內尺寸。 |
![]() |
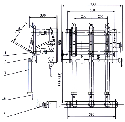
1、FN5-12負荷開關 2、支座熔斷器接線板 3、熔管 4、熔斷器接線板 5、熔斷器支架 注:配RN3熔管電流75A及75A以上的安裝尺寸為括號內尺寸。 |
![]() |
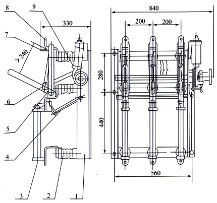
1、低架 2、絕緣子 3、熔管 4、脫扣裝置 5、動觸頭 6、滅弧管 7、導向片 8、靜觸頭 9、分合閘機構 |
![]() |
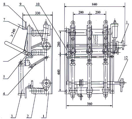
1、底架 2、絕緣子 3、熔管 4、脫扣裝置 5、動觸頭 6、滅弧管 7、導向片 8、靜觸頭 9、分合閘機構 10、聯鎖裝置 11、負荷開關操動機構 12、接地開關 |
![]() |
1、插座 2、框架 3、熔斷器 4、負荷開關本體 |
|
|
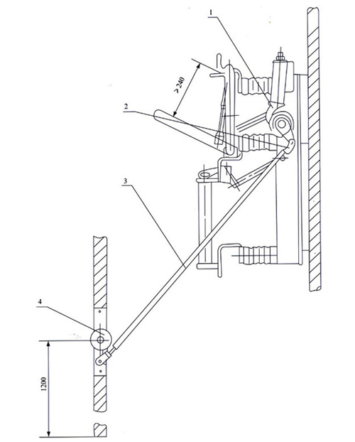
1、負荷開關 2、彎連接 3、3/4"焊接鋼管(用戶自備) 4、操動機構 |
![]() |
|
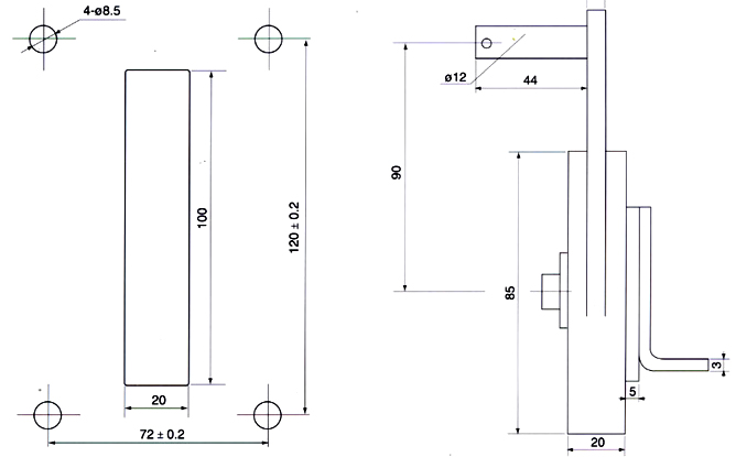
| Cs6操動機構開孔尺寸圖 | CS□操動機構開孔尺寸圖(側面) |
![]() |
|
| CS□操動機構開孔尺寸圖(正面) | |
最新產品